7654 Wilmington Loop
						
							 								Brokerage Office: 863-676-0200							
						
						
							 7654 Wilmington Loop, KISSIMMEE, FL 34747						
					


- MLS#: O6352608 ( Residential )
- Street Address: 7654 Wilmington Loop
- Viewed: 28
- Price: $959,000
- Price sqft: $165
- Waterfront: No
- Year Built: 2015
- Bldg sqft: 5800
- Bedrooms: 10
- Total Baths: 10
- Full Baths: 10
- Days On Market: 15
- Additional Information
- Geolocation: 28.2948 / -81.5945
- County: OSCEOLA
- City: KISSIMMEE
- Zipcode: 34747
- Subdivision: Reunion West Ph 1 West Ament
- Elementary School: Westside K 8
- Middle School: West Side
- High School: Poinciana High School
 
- DMCA Notice
- 
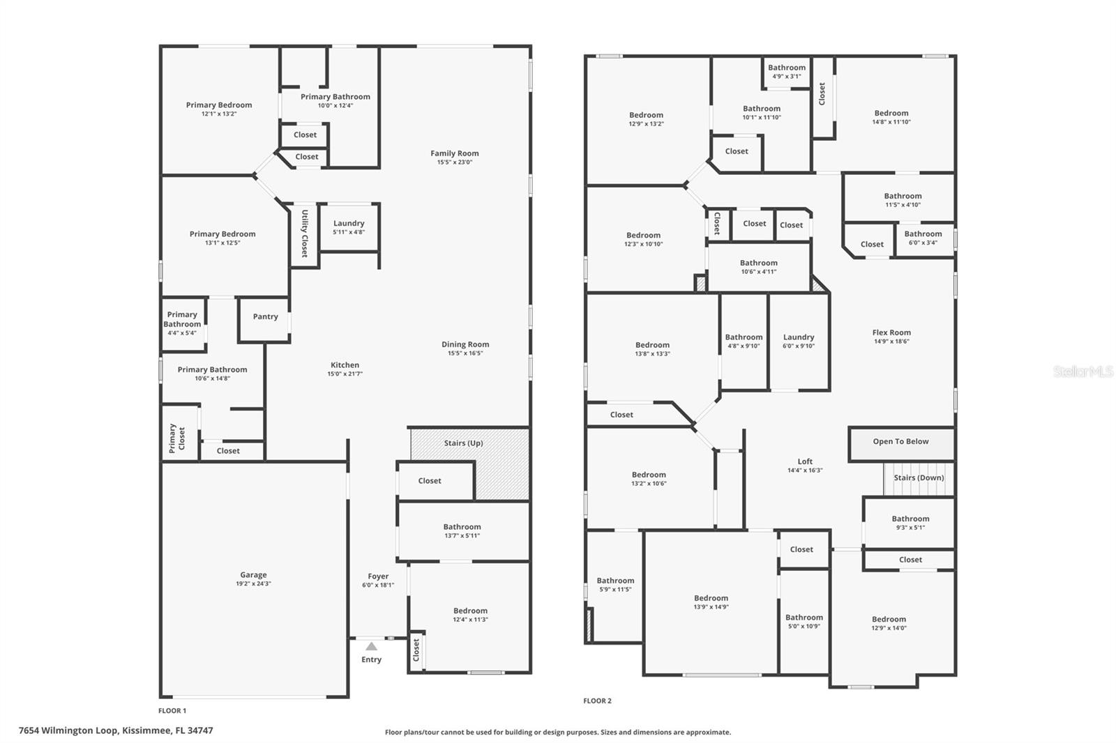
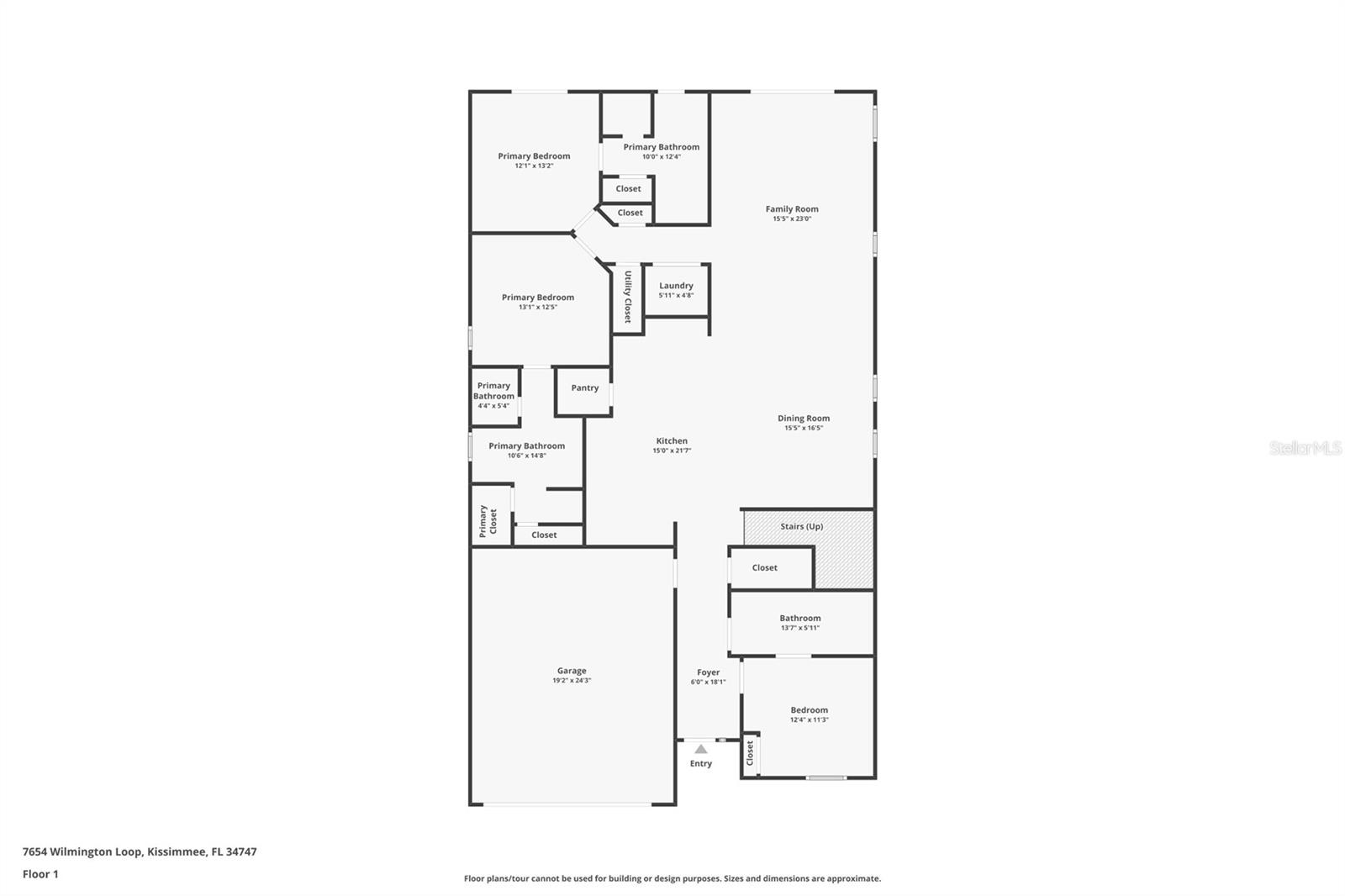
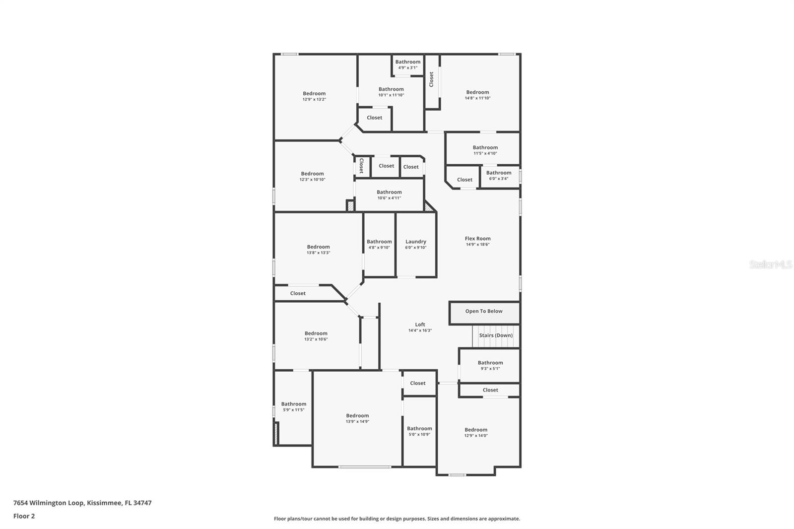
DescriptionDiscover this disney delight vacation villa where every stay feels like a celebration! This spectacular 10 bedroom, 10 bathroom property located in highly sought after encore at reunion resort, minutes from orlando's world famous theme parks, delivers the seamless blend of magical vacation memories and unparalleled investment opportunity. A rare chance to acquire a high quality asset at an exceptional price with potential for $128k in annual rental income. With immersive murals, professionally designed themed rooms, desirable bright coastal interiors, and luxurious amenities, this dream vacation home is an upscale resort style retreat positioned to capitalize on anticipated tourism from newly opened epic universe and disney parks significant expansions. Freshly painted interiors and exteriors (oct2025) create a bright, refreshed atmosphere complemented by new furnishings, newly epoxied garage floor, & freshly cleaned tile. With its fully furnished, turn key design, this home is ready for immediate enjoyment or effortless short term rental success. Designed to host large gatherings, the floor plan is impressive & functional. Three primary suites; two located downstairs & one upstairs, offer luxurious retreats while ensuite spa like baths provide ultimate privacy. Many with dual sinks, garden tubs, & natural light. The open concept great room & dining area flow into the kitchen with granite counters, 42 inch shaker style cabinetry, coffee bar, dual stainless steel refrigerators and dishwashers, and breakfast bar. Dual laundry rooms upstairs & down offer further convenience. Upstairs, the experience grows even more enchanting. Immersive themed rooms bring childhood dreams to life; harry potter's chamber of secrets, elsa's enchanted loft, and the superhero sanctuary are professionally designed with 360 degree murals and custom loftstyle beds. The star wars screening room offers a cinematic escape with projector, surround sound, and reclining leather sectional. A nearby entertainment loft with foosball and tv adds extra fun. Floor to ceiling sliding doors open to your private outdoor oasis featuring large covered lanai, spacious paver patio and lawn, heated pool and spa surrounded by tropical landscaping, fenced yard, no rear neighbors, and serene pond views. Whether sipping morning coffee by the pool or enjoying a sunset swim, every moment feels like a resort escape. Located a short walk from encore's exclusive amenities, you'll enjoy access to a 10 acre waterpark with exhilarating slides, splash pad, poolside cabanas, fitness center, courts for tennis, volleyball, and basketball, a full soccer field, casual on site dining & bar, concierge desk, and complimentary transportation to disney, universal & seaworld. The hoa covers internet, cable, landscaping, irrigation, pest control, community maintenance, and 24 hour manned security simplifying ownership while maximizing returns. This home is completely turn key, ready to start generating income from day one. With high occupancy potential, strong nightly rate projections, and prime location this home offers exceptional earning capacity for investors. Whether you're looking to generate income or create a personal retreat that pays for itself, this property provides the best of both worlds. Don't miss your chance to own a proven income generating property in the heart of orlando's thriving vacation rental market. Schedule your private showing today and start enjoying returns the day you close!
Property Location and Similar Properties
										  
			  						Property Features
Accessibility Features
- Accessible Full Bath
Appliances
- Dishwasher
- Disposal
- Dryer
- Exhaust Fan
- Ice Maker
- Microwave
- Range
- Range Hood
- Refrigerator
- Tankless Water Heater
- Washer
Association Amenities
- Basketball Court
- Cable TV
- Clubhouse
- Fitness Center
- Gated
- Park
- Playground
- Pool
- Recreation Facilities
- Tennis Court(s)
Home Owners Association Fee
- 783.67
Home Owners Association Fee Includes
- Guard - 24 Hour
- Cable TV
- Pool
- Internet
- Maintenance Grounds
- Management
- Pest Control
- Private Road
- Recreational Facilities
- Security
- Trash
Association Name
- Grace Montanz - Reunion West POA
Association Phone
- 407-785-9578
Baths Full
- 10
Baths Total
- 10
Carport Spaces
- 0.00
Close Date
- 0000-00-00
Cooling
- Central Air
Country
- US
Covered Spaces
- 0.00
Exterior Features
- Lighting
- Outdoor Grill
- Sidewalk
- Sliding Doors
Fencing
- Fenced
- Other
Flooring
- Ceramic Tile
- Luxury Vinyl
Furnished
- Turnkey
Garage Spaces
- 2.00
Heating
- Heat Pump
High School
- Poinciana High School
Insurance Expense
- 0.00
Interior Features
- Accessibility Features
- Ceiling Fans(s)
- Dry Bar
- Eat-in Kitchen
- High Ceilings
- Kitchen/Family Room Combo
- L Dining
- Living Room/Dining Room Combo
- Open Floorplan
- Primary Bedroom Main Floor
- PrimaryBedroom Upstairs
- Solid Wood Cabinets
- Split Bedroom
- Stone Counters
- Thermostat
- Walk-In Closet(s)
- Window Treatments
Legal Description
- REUNION WEST PH 1 WEST & AMENITIES CENTER REPLAT PB 24 PG 75-82 LOT 55
Levels
- Two
Living Area
- 4707.00
Lot Features
- Conservation Area
- Landscaped
- Level
- Sidewalk
Middle School
- West Side
Area Major
- 34747 - Kissimmee/Celebration
Net Operating Income
- 0.00
Occupant Type
- Vacant
Open Parking Spaces
- 0.00
Other Expense
- 0.00
Parcel Number
- 22-25-27-4924-0001-0550
Pets Allowed
- Cats OK
- Dogs OK
Pool Features
- Child Safety Fence
- Deck
- Gunite
- Heated
- In Ground
- Lighting
- Outside Bath Access
- Pool Alarm
- Tile
Possession
- Close Of Escrow
Property Condition
- Completed
Property Type
- Residential
Roof
- Shingle
School Elementary
- Westside K-8
Sewer
- Public Sewer
Style
- Florida
- Traditional
Tax Year
- 2024
Township
- 25S
Utilities
- BB/HS Internet Available
- Cable Connected
- Electricity Connected
- Natural Gas Connected
- Phone Available
- Sewer Connected
- Underground Utilities
- Water Connected
View
- Water
Views
- 28
Virtual Tour Url
- https://listing.trevisuality.com/vd/216352401
Water Source
- Public
Year Built
- 2015
Zoning Code
- RES
 
- Legacy Real Estate Center Inc
- Dedicated to You! Dedicated to Results!
- 863.676.0200
- dolores@legacyrealestatecenter.com

 















































































 
