1115 29th Street Nw
Brokerage Office: 863-676-0200
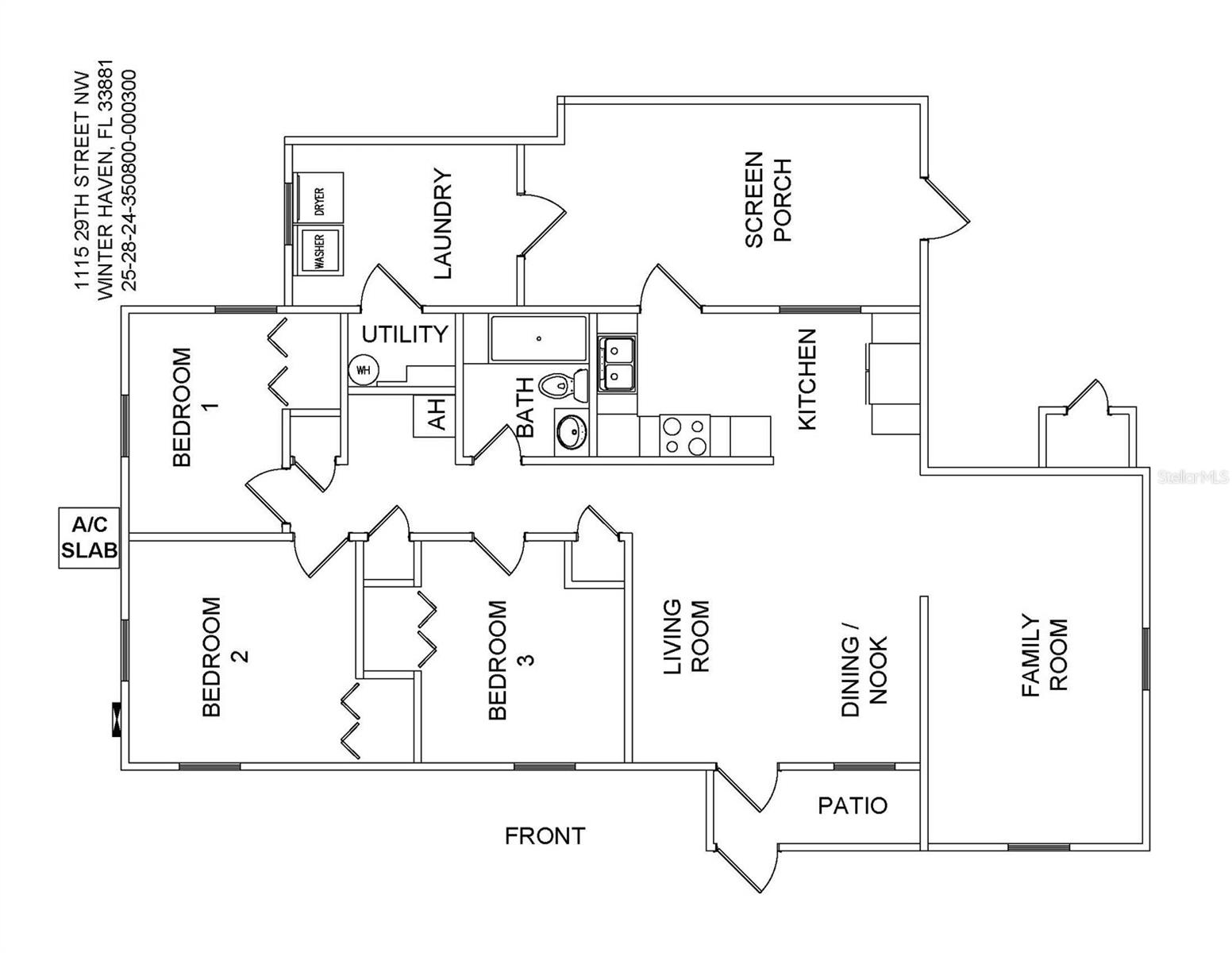
1115 29th Street Nw, WINTER HAVEN, FL 33881



- MLS#: L4956589 ( Residential )
- Street Address: 1115 29th Street Nw
- Viewed: 39
- Price: $219,950
- Price sqft: $188
- Waterfront: No
- Year Built: 1955
- Bldg sqft: 1173
- Bedrooms: 3
- Total Baths: 1
- Full Baths: 1
- Days On Market: 48
- Additional Information
- Geolocation: 28.0356 / -81.7625
- County: POLK
- City: WINTER HAVEN
- Zipcode: 33881
- Subdivision: Rosewood Manor
- Provided by: PORCHLIGHT HOMES LLC
- Contact: Angie Reynolds
- 863-529-3369

- DMCA Notice
-
DescriptionSELLER PAID 2 1 TEMPORARY INTEREST RATE BUYDOWN AVAILABLE See attachment for monthly payment details with preferred lender. Welcome to this newly renovated 3 bedroom, 1 bath home conveniently located near Lake Cannon and just minutes from all the dining, shopping, and entertainment that Winter Haven and Auburndale have to offer! Step through the front door to find fresh interior paint, new carpet in all bedrooms, and inviting living spaces. The kitchen has been refreshed with brand new appliances, provides plenty of cabinetry storage and counter space, and has a convenient layout for everyday cooking and entertaining. The bathroom is your own personal retreat featuring a new vanity and a walk in shower with a dual shower head system. Major updates include a new roof and a newer A/C unit, giving you peace of mind and comfort year round. Outside, the property is truly unique. Enjoy mornings on your screened in front porch, or host gatherings on the spacious screened in back porch complete with an attached utility room. The fenced backyard offers plenty of space for pets or play, and comes complete with a firepit, detached shed, and extra covered storage. There is also an extra wide driveway providing plenty of off street parking. This home is the perfect blend of comfort, outdoor space, and accessibility to the amenities near you. Dont miss your chance to see this one!
Property Location and Similar Properties
Property Features
Appliances
- Electric Water Heater
- Microwave
- Range
- Refrigerator
Home Owners Association Fee
- 0.00
Carport Spaces
- 0.00
Close Date
- 0000-00-00
Cooling
- Central Air
Country
- US
Covered Spaces
- 0.00
Exterior Features
- Other
- Storage
Fencing
- Chain Link
Flooring
- Carpet
- Laminate
- Tile
Garage Spaces
- 0.00
Heating
- Central
Insurance Expense
- 0.00
Interior Features
- Ceiling Fans(s)
Legal Description
- ROSEWOOD MANOR PB 37 PG 3 LOT 30
Levels
- One
Living Area
- 1129.00
Area Major
- 33881 - Winter Haven / Florence Villa
Net Operating Income
- 0.00
Occupant Type
- Vacant
Open Parking Spaces
- 0.00
Other Expense
- 0.00
Other Structures
- Other
- Shed(s)
- Storage
Parcel Number
- 25-28-24-350800-000300
Possession
- Close Of Escrow
Property Type
- Residential
Roof
- Shingle
Sewer
- Septic Tank
Tax Year
- 2025
Township
- 28
Utilities
- Electricity Connected
- Public
- Water Connected
Views
- 39
Virtual Tour Url
- https://www.propertypanorama.com/instaview/stellar/L4956589
Water Source
- Public
Year Built
- 1955
Zoning Code
- R-1
- Legacy Real Estate Center Inc
- Dedicated to You! Dedicated to Results!
- 863.676.0200
- dolores@legacyrealestatecenter.com

























